Description
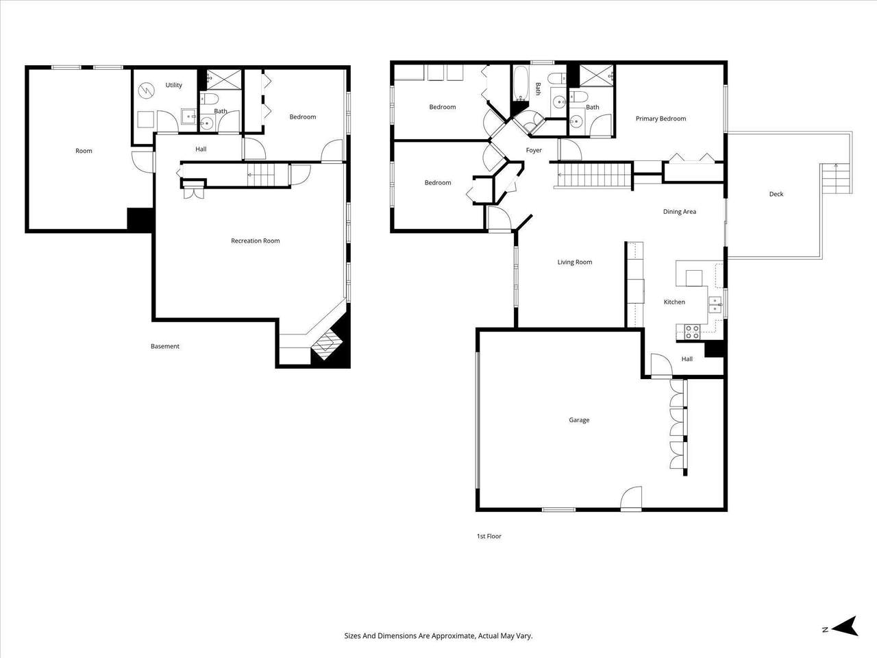
Welcome to this well-maintained rambler offering convenient main-level living. The spacious primary suite (20' x 13') comfortably fits king-size furniture and a reclining chair, and features a private ¾ bath and dual closets. Three bedrooms are located on the main level, with a fourth bedroom in the lower level—ideal for guests, a home office, or hobby space. The home features vaulted ceilings and a semi-open-concept floorplan, creating an airy and inviting atmosphere. Recent interior updates include fresh paint throughout the entire main level, new carpet in the living room and third main-floor bedroom, updated cabinet hardware in the kitchen and bathrooms, wallpaper removal for a clean, modern look, new locksets on main-floor and entry doors, and a new InSinkErator disposal. Step outside to an oversized 15' x 15' cedar deck with stairs leading down to a lush, beautifully maintained backyard. Fencing is allowed, offering flexibility and peace of mind for children and pets. The oversized two-car garage (30' x 21') includes built-in closet storage. Downstairs, the expansive rec room (23' x 25') features a cozy gas-burning fireplace with brick surround, while daylight lookout windows fill the space with natural light. You’ll also find a large unfinished storage or hobby room (15' x 20') plus a separate mechanical and laundry area. Major mechanical and exterior updates include vinyl windows (2015), siding and roof (2019), furnace (2020), and water heater (2024), providing comfort and confidence for years to come.
-
4BEDS
-
0.24ACRES
-
3BATHS
-
01/2 BATHS
-
1,940SQFT
-
$170$/SQFT
Listing courtesy of Coldwell Banker Realty.Description
Welcome to this well-maintained rambler offering convenient main-level living. The spacious primary suite (20' x 13') comfortably fits king-size furniture and a reclining chair, and features a private ¾ bath and dual closets. Three bedrooms are located on the main level, with a fourth bedroom in the lower level—ideal for guests, a home office, or hobby space. The home features vaulted ceilings and a semi-open-concept floorplan, creating an airy and inviting atmosphere. Recent interior updates include fresh paint throughout the entire main level, new carpet in the living room and third main-floor bedroom, updated cabinet hardware in the kitchen and bathrooms, wallpaper removal for a clean, modern look, new locksets on main-floor and entry doors, and a new InSinkErator disposal. Step outside to an oversized 15' x 15' cedar deck with stairs leading down to a lush, beautifully maintained backyard. Fencing is allowed, offering flexibility and peace of mind for children and pets. The oversized two-car garage (30' x 21') includes built-in closet storage. Downstairs, the expansive rec room (23' x 25') features a cozy gas-burning fireplace with brick surround, while daylight lookout windows fill the space with natural light. You’ll also find a large unfinished storage or hobby room (15' x 20') plus a separate mechanical and laundry area. Major mechanical and exterior updates include vinyl windows (2015), siding and roof (2019), furnace (2020), and water heater (2024), providing comfort and confidence for years to come.
Related Properties
IDX data © 2026 Regional Multiple Listing Service of Minnesota, Inc. All rights reserved. The data relating to real estate for sale on this web site comes in part from the Broker Reciprocity℠ Program of the Regional Multiple Listing Service of Minnesota, Inc. Real estate listings held by brokerage firms other than Keller Williams Realty Integrity Lakes are marked with the Broker Reciprocity℠ logo or the Broker Reciprocity℠ thumbnail logo (a little black house) and detailed information about them includes the name of the listing brokers. Keller Williams Realty Integrity Lakes is not a Multiple Listing Service, nor does it offer MLS access. This website is a service of Keller Williams Realty Integrity Lakes, a broker Participant of the Regional Multiple Listing Service of Minnesota, Inc. Information deemed reliable but not guaranteed. By viewing the listings on this site, you are agreeing to abide by the RMLS End-User License Agreement. Data last updated 2026-04-21T11:24:46.863.
Click here for Digital Millennium Copyright Act
